Der Quartiersentwurf fügt eine familiäre Gruppe von prägnanten Solitären in die bewegte Topografie des Stadtparks ein. Das Ensemble möchte sich dabei sowohl als lesbare Einheit von formal verwandten und aufeinander bezogenen Bauten darstellen, gleichzeitig die Kleinteiligkeit von lose angeordneten Punkthäusern ausspielen. Sowohl zum Park als auch zur Artikulierung der stadtseitigen Adresse an der Berliner Straße sind zwei der vier Häuser in verkippte Stellung gebracht. Die Anlage kann somit gestisch auf die prägenden Bedingungen der Umgebung reagieren und im gleichen Zuge einen spezifischen Binnenraum definieren. Dieser ist ein räumlich gefasster Platzbereich, eine gemeinschaftliche Mitte und die architektonische Intervention in einer überlieferten Parklandschaft. Hierbei stehen die Geometrien der Gebäude, ihre rationellen Strukturen in grafischem Kontrast zur bewegten Natur, den fließenden Höhenlinien und den umliegenden Vegetationen. 
Für den Kindergarten allein ist eine andere Anmutung gewählt, er ist als organische Form scheinbar nahtlos in die nördliche Hügelkuppe integriert.

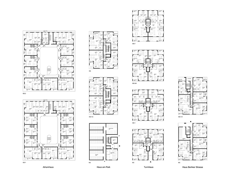
12.500 m² Bgf, 129 Wohneinheiten, Co-working spaces 
Wettbewerb 1.Preis
mit Baufrösche, Kassel

Berliner Straße
Leonberg
2022